Residencia 2
 Residencia 2
 Residencia 2
 Residencia 2
Residencia 2

Residencia 2 e продолжение на елитниот станбенo деловен комплекс Residencia.
Објектот се состои од 39 станбени единици, 10 ексклузивни деловни простори и 65 паркинт места.

Локација

ул. 709 - Скопје

Година на изградба

2027

Тип на објект

Станбен + Деловен

PDF Брошура
Станови
Кат

37м2


Површина:

  • Вкупно37м2
Кат

46м2


Површина:

  • Вкупно46м2
Кат

46м2


Површина:

  • Вкупно46м2
Кат

47м2


Површина:

  • Вкупно47м2
Кат

54м2


Површина:

  • Вкупно54м2
Кат

69м2


Површина:

  • Вкупно69м2
Кат

77м2


Површина:

  • Вкупно77м2
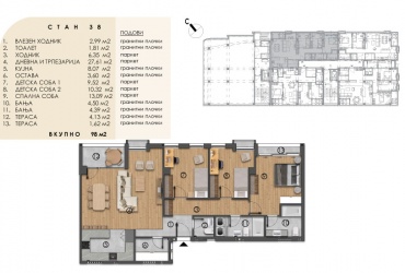
Кат

93м2


Површина:

  • Вкупно93м2
Кат

98м2


Површина:

  • Вкупно98м2
Заинтересирани за купување на стан?

Контактирајте нè